MH845,  Székesfehérváron vállalkozás részére ingatlan kiadó!

Ref # : MH845

Kiadva 400.000 Ft
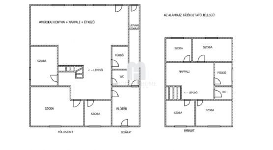
Remek lehetőség vállalkozása elindítására. Székesfehérváron vállalkozás részére ingatlan kiadó! Kiadásra kínálom Székesfehérvár – Halesz Park környékén lévő lakóingatlant vállalkozók részére. Főbb jellemzők: •jelenleg családi házként nyilvántartott ingatlan paramétereinek köszönhetően kiválóan alkalmas egyéni vagy családi vállalkozás céljára. •a családi ház: 135 nm, kétszintes, dupla-komfortos, nagyon jó állapotú. •kert mérete: 419 nm, térkövezett + tároló. ( 6 nm ). •elosztása: földszint: előtér + amerikai konyha – nappali – étkező – 1 félszoba + 2 szobás + fürdő + wc. emelet: 4 szoba + fürdő + wc + nappali. •tájolása: K-NY-i. •az otthon melegét gázcirkó-fűtés biztosítja radiátoros hőleadással + a nappaliban található hangulatos kandalló is felel a melegért. •meleg-víz ellátásról szintén a gázkazán gondoskodik. •több ponton záródó műanyag bejárati ajtó, igényes beltéri ajtók, műanyag nyílászárók kerültek beépítésre, melyek redőnnyel és szúnyoghálóval felszereltek. •tágas – világos nappali, megfelelő mérető helyiségek. •központi elhelyezkedés. Az ingatlan költsége: Bérleti díj + (használat utáni közüzemi díjat szükséges fizetni). Bérleti díj: 400.000 Ft / hó + rezsi. 2 havi kaució szükséges. Bérlet időszaka minimum: 1 év. Az ingatlan kiválóan alkalmas: előadások, irodai tevékenységek, oktatás, nyelviskola, autósiskola, könyvelőiroda, közjegyzői és ügyvédi iroda, fotóstúdió, magánrendelőintézet, rendezvényszervezés, bemutatóterem, szépségipar minden ágazata: - fodrászat, masszázs, pedikűr – manikűr, kozmetika kialakítására. Az ingatlan adottsága rendkívül jó, hiszen több helyiségből tevődik össze. Csak a fantázia szabhat határt az elképzeléseinek. Színvonalas ügyfélváró és recepció kialakítható. Parkolás a ház előtt több autó részére lehetséges, és ingyenes. Infrastruktúra: az ingatlan jó elhelyezkedésű, közel a Halesz Parkhoz. Megélhetés szempontjából perceken belül minden elérhető. Hívjon bizalommal.

További információk

Alap információk

Szobák száma: 7
Fürdőszoba: 2

További információk

Alapterület: 135 m2
Telekméret: 419 m2
Hasonló ingatlanok
Kapcsolódó ingatlanok
MH937, Exkluzív lakás Székesfehérváron!
Eladó

MH937, Exkluzív lakás Székesfehérváron!

8000, Székesfehérvár, 8000, Fejér
100.000.000 Ft
MH980,  Székesfehérváron újszerű családi ház eladó!
Eladó

MH980, Székesfehérváron újszerű családi ház eladó!

8000, Székesfehérvár, 8000, Fejér
149.990.000 Ft
MH303, Álomlakás eladó Székesfehérváron Ráchegyen!
Eladva

MH303, Álomlakás eladó Székesfehérváron Ráchegyen!

Székesfehérvár, Székesfehérvár, 8000, Fejér
55.000.000 Ft
MH309, Székesfehérváron a belvárosban téglalakás eladó.
Eladva

MH309, Székesfehérváron a belvárosban téglalakás eladó.

Székesfehérvár, Székesfehérvár, 8000, Fejér
20.800.000 Ft
Ezeket az ingatlanokat látta már?
MH8, Kiadó összkomfortos panel lakás, Székesfehérvár
Kiadva

MH8, Kiadó összkomfortos panel lakás, Székesfehérvár

Székesfehérvár, 8000, Fejér
95.000 Ft
MH809, KIADÓ LAKÁS: 2022.10.01. Móron panellakás kiadó!
Kiadva
MH83, Szlovákiában kiadó családi ház
Kiadva

MH83, Szlovákiában kiadó családi ház

Szlovákia, Komárno, Újfalu
125.000 Ft
MH413, Székesfehérváron orvosi rendelő kiadó!
Kiadva

MH413, Székesfehérváron orvosi rendelő kiadó!

Seregélyesi u, Székesfehérvár, 8000, Fejér
100.000 Ft

Ingatlan kereső

  • Gyorskereső
  • (Ft). 0
    (Ft). 500,000,000
  •   Részletes keresés