MH674,  Lepsény zártkerti részén hosszútávra ingatlan kiadó, azonnali költözéssel.

  • Alapterület: 100 m2
  • Telekméret: 922.00 m2
  • Fürdőszoba: 1
  • Szobák száma: 5
  • Kategória: Családi ház

Ref # : MH674

Kiadva 120.000 Ft
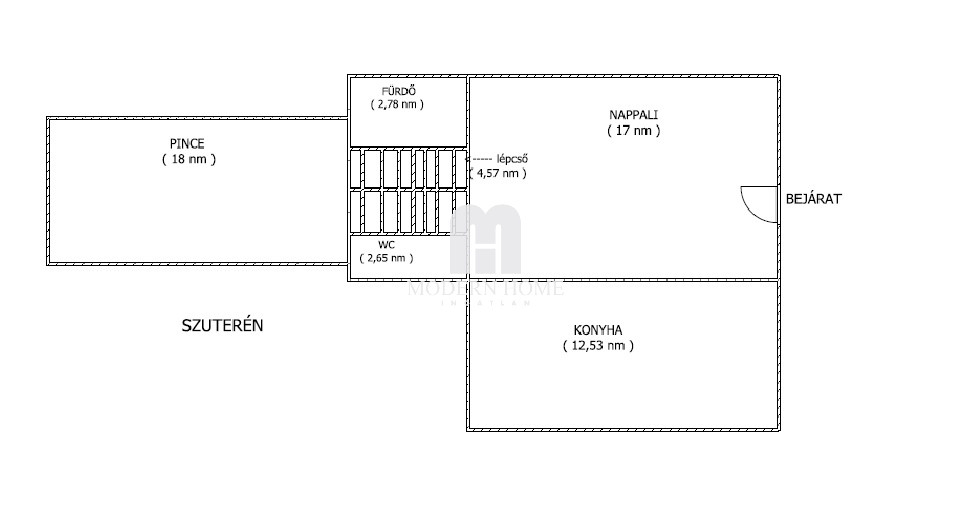
Jó választás! Kiadásra kínálom Lepsény madárcsicsergős részén, távol a város zajától, egy hangulatos felújított zártkerti ingatlant hosszútávra. ( minimum 1 év ) A házikó 1982 évben épült, majd 2007 évben hozzáépítéssel bővült. Zárt – körbekerített - parkosított telken ami 922 nm, egy 3 szintes, ( több bejárattal rendelkező ) 100 nm –es, 2 + 3 félszobás, teljes bútorzattal, kamerarendszerrel felszerelt, részben alápincézett ingatlan keresi új albérlő lakóit. Udvarban kerti tó, örökzöldek, melléképület, kétállásos garázs, fúrt kút, hangulatos terasz csak fokozza a feltöltődést. Az otthon melegét villanyfűtés ( infra/panel biztosítja ). Hidegvíz ellátás 40 m mély fúrt kútról hidrofol segítségével, melegvíz ellátás villanybojlerről történik. Ipari áram – éjszakai áram bevezetve. Fenntartási költség rendkívül kedvező, hiszen csak villanyszámlát kell fizetnie. Bérleti díj: 120.000 Ft / hó + 2 havi kaució + rezsi ( rezsi mindösszesen: 20.000 Ft / hó ). Lakcímkártyára történő bejelentés, gyermekes család, kistestű állat, engedélyezett. Infrastruktúra: Lepsény központja 10 perc alatt, ( minden ami a megélhetéshez szükséges perceken belül elérhető: boltok, iskola, óvoda, gyógyszertár, fogorvos, orvosi rendelő, 100 m belül buszmegálló, pékség, cukrászda, és nem utolsó sorban a közeli Siófok és Székesfehérvár 15-20 perc alatt megközelíthető. Internet, közvilágítás az utcában nagyon jó. Előre egyeztetett időpontban az ingatlan megtekinthető. Kérem, hívjon bizalommal.

További információk

Alap információk

Szobák száma: 5
Fürdőszoba: 1

További információk

Alapterület: 100 m2
Telekméret: 922 m2
Hasonló ingatlanok
Kapcsolódó ingatlanok
MH458, Lepsényben igényesen felújított családi ház eladó!
Eladva

MH458, Lepsényben igényesen felújított családi ház eladó!

Lepsény, Lepsény, 8132, Fejér
26.800.000 Ft
MH903, Lepsényben lakóingatlan eladó!
Eladva

MH903, Lepsényben lakóingatlan eladó!

8132, Lepsény, 8132, Fejér
22.000.000 Ft
MH913, Lepsényben családi ház eladó!
Eladva

MH913, Lepsényben családi ház eladó!

Lepsény, Lepsény, 8132, Fejér
30.000.000 Ft
Ezeket az ingatlanokat látta már?
MH8, Kiadó összkomfortos panel lakás, Székesfehérvár
Kiadva

MH8, Kiadó összkomfortos panel lakás, Székesfehérvár

Székesfehérvár, 8000, Fejér
95.000 Ft
MH809, KIADÓ LAKÁS: 2022.10.01. Móron panellakás kiadó!
Kiadva
MH83, Szlovákiában kiadó családi ház
Kiadva

MH83, Szlovákiában kiadó családi ház

Szlovákia, Komárno, Újfalu
125.000 Ft
MH413, Székesfehérváron orvosi rendelő kiadó!
Kiadva

MH413, Székesfehérváron orvosi rendelő kiadó!

Seregélyesi u, Székesfehérvár, 8000, Fejér
100.000 Ft
MH780, Székesfehérvár ( belváros közeli ) iroda / üzlethelyiség kiadó!
Kiadva

Ingatlan kereső

  • Gyorskereső
  • (Ft). 0
    (Ft). 500,000,000
  •   Részletes keresés