MH803,  ÁRZUHANÁS! Székesfehérváron családi ház eladó!

  • Alapterület: 80 m2
  • Telekméret: 719.00 m2
  • Fürdőszoba: 2
  • Szobák száma: 4
  • Kategória: Családi ház

Ref # : MH803

Eladva 49.500.000 Ft
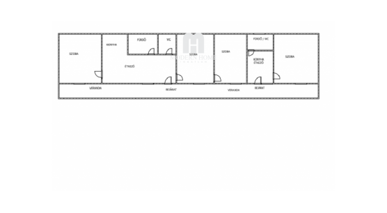
Akár kétgeneráció részére ( is ). Eladásra kínálom Székesfehérvár – Feketehegy folyamatosan fejlődő területén, csendes utcában található, jó állapotú családi házat. Főbb jellemzők: Telek mérete: 719 nm. Házikó mérete: 80 nm, egyszintes. Elosztása: 4 szoba + dupla konyha + dupla étkező + duplakomfort, és hangulatos veranda. Tájolása: K-NY-i. Az ingatlant jelenleg két-generációként használják, ( külön bejárattal ), igény esetén egy fal elbontásával az elválasztott rész egybe nyitható. Az otthon melegét gázcirkó fűtés biztosítja radiátor hőleadásával. Meleg-víz ellátás villanybojlerről megoldott, alternatívaként lehetőség van gázkazánról történő meleg-víz ellátása is. Korszerűsítést követően több ponton záródó bejáratok, minőségi műanyag nyílászárók kerültek beépítésre, szúnyoghálóval és rolóval felszerelve. Villanyhálózat és vízrendszer teljes-körűen felújítva. Falazat: vályog. Tetőszerkezetet cserépborítás fedi. Az aljzat: szigeteléssel ellátott. ( víz-szigetelés ). A terület méretének köszönhetően kiválóan alkalmas családi összejövetelekre, grillezésre, bográcsozásra, gyerekek részére medence, játszóház, trambulin elhelyezhető. Udvarban fúrt kút ( szivattyúval ellátva ), garázs, tárolók, pince, veteményes megtalálható. Zárt körbekerített kertben számos gyümölcsfák: roskadásik termő alma, körte, szőlő, cseresznye, szilva, barack és örökzöldek. Lakóközösség csendes, kedves összetartó. Az ingatlan fenntartási költsége nagyon kedvező. Utcafront: 20 m széles. Lokáció: buszmegálló, coop bolt, LIDL, étterem, cukrászda, posta 5 perc alatt elérhető. Iskola, óvoda, bölcsőde autóval 10 perc. Hívjon bizalommal.

További információk

Alap információk

Szobák száma: 4
Fürdőszoba: 2

További információk

Alapterület: 80 m2
Telekméret: 719 m2
Hasonló ingatlanok
Kapcsolódó ingatlanok
MH937, Exkluzív lakás Székesfehérváron!
Eladó

MH937, Exkluzív lakás Székesfehérváron!

8000, Székesfehérvár, 8000, Fejér
100.000.000 Ft
MH980,  Székesfehérváron újszerű családi ház eladó!
Eladó

MH980, Székesfehérváron újszerű családi ház eladó!

8000, Székesfehérvár, 8000, Fejér
149.990.000 Ft
MH303, Álomlakás eladó Székesfehérváron Ráchegyen!
Eladva

MH303, Álomlakás eladó Székesfehérváron Ráchegyen!

Székesfehérvár, Székesfehérvár, 8000, Fejér
55.000.000 Ft
MH309, Székesfehérváron a belvárosban téglalakás eladó.
Eladva

MH309, Székesfehérváron a belvárosban téglalakás eladó.

Székesfehérvár, Székesfehérvár, 8000, Fejér
20.800.000 Ft
Ezeket az ingatlanokat látta már?
MH3, Székesfehérvári felújított lakás eladó
Eladva

MH3, Székesfehérvári felújított lakás eladó

Székesfehérvár, belváros közelében, 8000, Fejér
13.500.000 Ft
MH4, Teljesen felújított lakás eladó, Székesfehérvár
Eladva

MH4, Teljesen felújított lakás eladó, Székesfehérvár

Székesfehérvár, Széchenyi utca, 8000, Fejér
10.800.000 Ft
MH5, Eladó téglaépítésű családi ház Székesfehérváron
Eladva

MH5, Eladó téglaépítésű családi ház Székesfehérváron

Székesfehérvár, Domb utca, 8000, Fejér
29.000.000 Ft
MH11,  üdülőház eladó, Zalakaros
Eladva

MH11, üdülőház eladó, Zalakaros

Zalakaros, 8749, Zala
3.900.000 Ft

Ingatlan kereső

  • Gyorskereső
  • (Ft). 0
    (Ft). 500,000,000
  •   Részletes keresés