MH650,  Székesfehérvár kedvelt részén téglalakás eladó!

  • Alapterület: 60 m2
  • Fürdőszoba: 1
  • Szobák száma: 2
  • Kategória: Tégla lakás

Ref # : MH650

Eladva 46.900.000 Ft
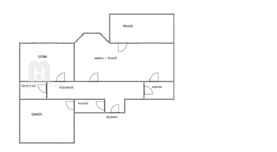
Jó döntés! Székesfehérvár belváros közeli, de mégis csendes részén, 2001 évben épült társasház földszintjén, 60 nm –es, kertkapcsolatos ( hangulatos terasz + kert ) tágas – világos nappali + étkező + gépiesített - konyha + 1 szobás + előszobás ( beépített szekrényekkel ),tehermentes, újszerű állapotú téglalakás eladó. Élvezze a nyugalmat, madárcsicsergést, és az idilli környezetet. Az otthon melegét gázcirkófűtés biztosítja radiátor hőleadással. Melegvíz ellátásról szintén a gázkazán gondoskodik. Külső falazat + tetőszigetelést kapott. Minőségi kül és beltéri ajtók, és műanyag nyílászárók kerültek beépítésre, melyek redőnnyel és szúnyoghálóval felszereltek. Parkolás a társasház előtt, illetve a társasház zárt udvarában lehetséges, opcionálisan garázsvásárlási lehetőség is adott. Lakóközösség csendes / kedves / rendszerető. Lépcsőház tiszta kulturált. Infrastruktúra szempontjából: Bregyó közi szabadidő központ, Koronázó park, Rózsaliget, Csónakázó –tó, iskola, óvoda, bölcsőde, és ami a szem – szájnak ingere, perceken belül elérhető. Amennyiben az ingatlan felkeltette érdeklődését, kérem, hívjon bizalommal.

További információk

Alap információk

Szobák száma: 2
Fürdőszoba: 1

További információk

Alapterület: 60 m2
Hasonló ingatlanok
Kapcsolódó ingatlanok
MH937, Exkluzív lakás Székesfehérváron!
Eladó

MH937, Exkluzív lakás Székesfehérváron!

8000, Székesfehérvár, 8000, Fejér
100.000.000 Ft
MH980,  Székesfehérváron újszerű családi ház eladó!
Eladó

MH980, Székesfehérváron újszerű családi ház eladó!

8000, Székesfehérvár, 8000, Fejér
149.990.000 Ft
MH303, Álomlakás eladó Székesfehérváron Ráchegyen!
Eladva

MH303, Álomlakás eladó Székesfehérváron Ráchegyen!

Székesfehérvár, Székesfehérvár, 8000, Fejér
55.000.000 Ft
MH309, Székesfehérváron a belvárosban téglalakás eladó.
Eladva

MH309, Székesfehérváron a belvárosban téglalakás eladó.

Székesfehérvár, Székesfehérvár, 8000, Fejér
20.800.000 Ft
Ezeket az ingatlanokat látta már?
MH3, Székesfehérvári felújított lakás eladó
Eladva

MH3, Székesfehérvári felújított lakás eladó

Székesfehérvár, belváros közelében, 8000, Fejér
13.500.000 Ft
MH4, Teljesen felújított lakás eladó, Székesfehérvár
Eladva

MH4, Teljesen felújított lakás eladó, Székesfehérvár

Székesfehérvár, Széchenyi utca, 8000, Fejér
10.800.000 Ft
MH5, Eladó téglaépítésű családi ház Székesfehérváron
Eladva

MH5, Eladó téglaépítésű családi ház Székesfehérváron

Székesfehérvár, Domb utca, 8000, Fejér
29.000.000 Ft
MH11,  üdülőház eladó, Zalakaros
Eladva

MH11, üdülőház eladó, Zalakaros

Zalakaros, 8749, Zala
3.900.000 Ft

Ingatlan kereső

  • Gyorskereső
  • (Ft). 0
    (Ft). 500,000,000
  •   Részletes keresés