MH731,  Siófok kedvelt részén rendkívül jó állapotú családi ház eladó!

  • Alapterület: 106 m2
  • Telekméret: 686.00 m2
  • Fürdőszoba: 1
  • Szobák száma: 3
  • Kategória: Családi ház

Ref # : MH731

Eladva 69.900.000 Ft
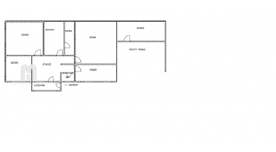
Remek lehetőség. Eladásra kínálom Siófok – belváros - kertvárosi övezet csendes részén, 686 nm – es telken, 1980 évben épült, 1 szintes, 106 nm –es, előszoba + 3 szoba + étkezős, részben bútorozott, rendkívül jó állapotú, összkomfortos, tehermentes, téglaépítésű családi házat. Az otthon melegét gázcirkó fűtés biztosítja radiátoros hőleadással. Plusz kéménynek köszönhetően cserépkályha / kandalló kialakítható. Meleg-víz ellátásról szintén a gáz kazán gondoskodik. A kazánt 3 éve modernizálták, kondenzációs kazánra cserélték. Korszerűsítést követően ( 2008 évben ) villanyhálózat, vízrendszer teljes-kőrű felújításon esett át. Több ponton záródó bomba biztos bejárati ajtó, minőségi műanyag nyílászárók kerültek beépítésre, melyek redőnnyel és szúnyoghálóval felszereltek. A külső falazat és a tető is szigetelést kapott. Forró nyári napokon a kellemes hőérzetről klíma gondoskodik. Szobák laminált parkettaborítást, míg a többi helyiség járólappal fedett. A házikó riasztóval felszerelt. Konyha és fürdő új arculattal ékesíti a lakást. Zárt / térkövezett / körbekerített udvarban 2 állásos elektromos kapuval felszerelt garázs, 25 nm tároló, és kerti csap kapott helyet. Több autó részére gépkocsibeálló létesíthető. Tárolóból vállalkozási tevékenység: ( pl: masszázs, pedikűr – manikűr, fodrász ), de apartman - vendégház kialakítása is kisebb ráfordítással átalakítható. A lakályos fedett terasz családi összejövetelek esetén, csak fokozza a hangulatot – grillezés – bográcsozás közben. Az udvar méretének köszönhetően gyerekek részére medence / játszóház / trambulin elhelyezhető. Kertben örökzöldek, pampafű, virágok, gyümölcsfa ( meggy, körte, alma, barackfa ) megtalálható. Infrastruktúra szempontjából: Aranypart, Balaton, strand és a forró nyári élmények adta lehetőségek: 600 m belül elérhetőek. Minden, ami a megélhetéshez szükséges perceken belül: központ, bevásárlási lehetőségek, éttermek, pizzéria, sushi bár, belváros, óvoda, bölcsőde, játszóterek, posta, gyógyszertár 10 percen belül megközelíthető. Ajánlom családoknak, nyaralónak, de befektetés céljából sem utolsó szempont. Amennyiben az ingatlan felkeltette érdeklődését, kérem, hívjon bizalommal.

További információk

Alap információk

Szobák száma: 3
Fürdőszoba: 1

További információk

Alapterület: 106 m2
Telekméret: 686 m2
Hasonló ingatlanok
Kapcsolódó ingatlanok
MH356, Csodálatos naplemente Siófokon! Élvezze a nyarat!
Eladva

MH356, Csodálatos naplemente Siófokon! Élvezze a nyarat!

Siófok, Siófok, 8600, Somogy
44.900.000 Ft
Ezeket az ingatlanokat látta már?
MH3, Székesfehérvári felújított lakás eladó
Eladva

MH3, Székesfehérvári felújított lakás eladó

Székesfehérvár, belváros közelében, 8000, Fejér
13.500.000 Ft
MH4, Teljesen felújított lakás eladó, Székesfehérvár
Eladva

MH4, Teljesen felújított lakás eladó, Székesfehérvár

Székesfehérvár, Széchenyi utca, 8000, Fejér
10.800.000 Ft
MH5, Eladó téglaépítésű családi ház Székesfehérváron
Eladva

MH5, Eladó téglaépítésű családi ház Székesfehérváron

Székesfehérvár, Domb utca, 8000, Fejér
29.000.000 Ft
MH11,  üdülőház eladó, Zalakaros
Eladva

MH11, üdülőház eladó, Zalakaros

Zalakaros, 8749, Zala
3.900.000 Ft

Ingatlan kereső

  • Gyorskereső
  • (Ft). 0
    (Ft). 500,000,000
  •   Részletes keresés