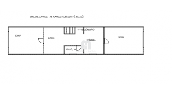
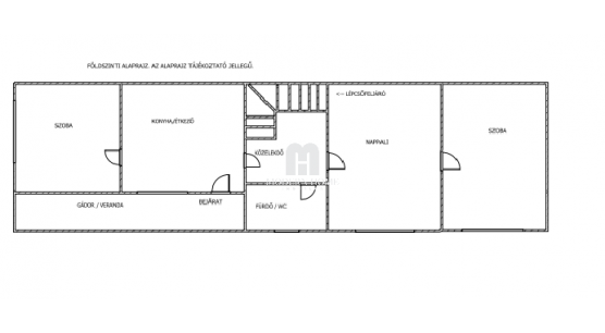
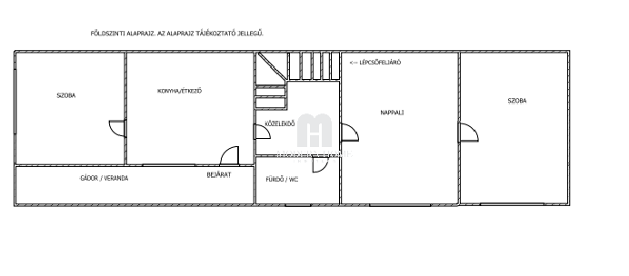
MH740,  Füle kedvelt részén családi ház eladó!

  • Alapterület: 270 m2
  • Telekméret: 2589.00 m2
  • Fürdőszoba: 2
  • Szobák száma: 5
  • Kategória: Családi ház

Ref # : MH740

Eladva 59.500.000 Ft
Csend, béke, nyugalom. Eladásra kínálom Füle csendes részén, 2589 nm telken, 1991 évben épült, déli tájolású, kétszintes, 270 nm – es, tágas – világos 5 szobás, részben bútorozott, jó állapotú családi házat. Csend / béke / nyugalom szigete. Örökzöldek, hangulatos - bágogos – verandás terasz, idilli környezet, távol a város zajától. Az otthon melegét gázcirkó fűtés biztosítja, radiátor és padlófűtés hőleadásával. (fűtéskorszerűsítés 2020 évben történt ), plusz kéményeknek köszönhetően cserépkályha, kandalló kialakítható. Melegvíz ellátásról 120 l villanybojler gondoskodik. Főbb jellemzők: Az ingatlan kiválóan alkalmas vendégház, panzió kialakítására, vagy nagyobb család életvitelszerű lakhatására. Duplakomfort ( fürdő / wc ) mindkét szinten. Szobákban laminált – parketta, illetve hajópadló, többi helyiség járólappal fedett. Felső szinten: klíma ( amely hűt – hűt ). Tetőszerkezet tapolcai gyapottal szigetelt, békéscsabai cseréppel borított, belvilág faburkolattal fedett. Az ingatlan riasztóval felszerelt. Udvarban kerti csap, 28 nm tároló / műhely. ( Kisebb vállalkozás igény esetén kialakítható. ), illetve gépkocsibeálló tervezhető. Kábel Tv, széles sávú internet elérhető. Duplaüvegű fa ablakok kerültek beépítésre, melyek szúnyoghálóval és zsaluziával felszereltek. Hangulatos gádor – veranda. Az ingatlan B38 téglából épült, + vakolat – festés. Lakóközösség csendes, rendszerető. Szomszédok barátságosak. Az ingatlan fenntartási költsége kedvező. A telek méretének köszönhetően kiválóan alkalmas családi összejövetelekre, grillezésre, bográcsozásra, gyerekek részére medence, játszóház, trambulin elhelyezhető. A telek végében patak folyik. Infrastruktúra szempontjából: Balaton 8 km, azért a vendégház kialakítása rendkívül nagy előnnyel jár, azonban nagycsaládosok részére is kitűnő választás. Fülén: iskola, óvoda, posta, buszmegálló, vasút, kulturális központ, bicikliút, bolt, perceken belül elérhető. Székesfehérvár 20 perc, Siófok 10 perc alatt megközelíthető. Amennyiben az ingatlan felkeltette érdeklődésé, kérem, hívjon bizalommal.

További információk

Alap információk

Szobák száma: 5
Fürdőszoba: 2

További információk

Alapterület: 270 m2
Telekméret: 2589 m2
Hasonló ingatlanok
Kapcsolódó ingatlanok
MH536, Fülén családi ház eladó!
Eladva

MH536, Fülén családi ház eladó!

Füle, Füle, 8157, Fejér
24.500.000 Ft
MH659, ÁRZUHANÁS! Fülén, jó állapotú családi ház eladó!
Eladva
MH885, Családi ház eladó Fülén!
Lefoglalva

MH885, Családi ház eladó Fülén!

8157, Füle, 8157, Fejér
59.000.000 Ft
Ezeket az ingatlanokat látta már?
MH3, Székesfehérvári felújított lakás eladó
Eladva

MH3, Székesfehérvári felújított lakás eladó

Székesfehérvár, belváros közelében, 8000, Fejér
13.500.000 Ft
MH4, Teljesen felújított lakás eladó, Székesfehérvár
Eladva

MH4, Teljesen felújított lakás eladó, Székesfehérvár

Székesfehérvár, Széchenyi utca, 8000, Fejér
10.800.000 Ft
MH5, Eladó téglaépítésű családi ház Székesfehérváron
Eladva

MH5, Eladó téglaépítésű családi ház Székesfehérváron

Székesfehérvár, Domb utca, 8000, Fejér
29.000.000 Ft
MH11,  üdülőház eladó, Zalakaros
Eladva

MH11, üdülőház eladó, Zalakaros

Zalakaros, 8749, Zala
3.900.000 Ft

Ingatlan kereső

  • Gyorskereső
  • (Ft). 0
    (Ft). 500,000,000
  •   Részletes keresés