MH658,  Dinnyésen családi ház eladó!

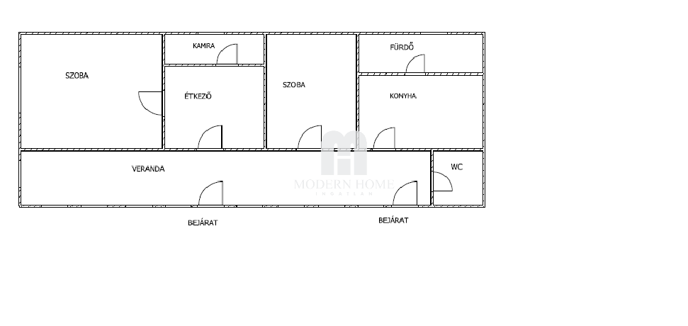
  • Alapterület: 85 m2
  • Telekméret: 1371.00 m2
  • Fürdőszoba: 1
  • Szobák száma: 2
  • Kategória: Családi ház

Ref # : MH658

Eladva 24.990.000 Ft
Alakítsa igénye szerint! Eladásra kínálom Dinnyés csendes részén, 1371 nm – es telken, egyszintes, 85 nm –es, 2 szobás + étkező + konyha + kamrás, beépített verandás, tehermentes, azonnal birtokba vehető, összkomfortos, tömésfal + téglaépítésű családi házat. Az otthon melegét vegyes-tüzelésű kazán, konvektor + gázkazán biztosítja radiátoros hőleadással. Plusz kéménynek köszönhetően cserépkályha / kandalló kialakítható. Meleg-víz ellátást átfolyós vízrendszer biztosítja. Korszerűsítést követően a villanyrendszer részben felújítva. Több ponton záródó minőségi kültéri ajtók ( 2 külön bejárattal rendelkező ), és műanyag nyílászárók kerültek beépítésre, melyek redőnnyel, és szúnyoghálóval felszereltek. A telek méretének köszönhetően kiválóan alkalmas családi összejövetelekre, grillezésre / bográcsozásra, gyerekek részére medence / játszóház elhelyezhető. Az utcafront 15 m széles. Az udvarban fűthető garázs ( 15 nm ), kerti-csap és fúrt kút ( 36 m mély ). Veteményezésre, állattenyésztésre a lehetőség adott, ólak, tárolók már kialakítottak. Kertben örökzöldek, virágok, néhány gyümölcsfa ( dió, alma, barack, eper, málna, ribizli. ) Infrastruktúra szempontjából: óvoda, coop bolt, pékség, orvosi rendelő, posta, buszmegálló, vasútállomás, focipálya, bicikliút, kávézó, pár percnyire. Iskola a szomszéd településen Gárdonyban, illetve nagyobb bevásárlási lehetőség szintén Gárdonyban ( ahol, LIDL, ALDI, SPAR, PENNY ) megtalálható. Agárdi strand 5 perc!! Vasútközlekedés Budapest irányába fél óránként elérhető. A közeli Székesfehérvár autóval 10 – 15 perc alatt elérhető, amely számos munkalehetőséget kínál. Amennyiben az ingatlan felkeltette érdeklődését, kérem, hívjon bizalommal.

További információk

Alap információk

Szobák száma: 2
Fürdőszoba: 1

További információk

Alapterület: 85 m2
Telekméret: 1371 m2
Hasonló ingatlanok
Kapcsolódó ingatlanok
MH553,  Agárd / Gárdonyban újépítésű lakás eladó!
Eladva

MH553, Agárd / Gárdonyban újépítésű lakás eladó!

Gárdony, Gárdony, 2483, Fejér
32.800.000 Ft
MH554,  Agárd / Gárdonyban újépítésű lakás eladó!
Eladva

MH554, Agárd / Gárdonyban újépítésű lakás eladó!

Gárdony, Gárdony, 2483, Fejér
32.800.000 Ft
MH585, ÁRZUHANÁS!   Gárdonyban családi ház eladó!
Eladva

MH585, ÁRZUHANÁS! Gárdonyban családi ház eladó!

Gárdony, Gárdony, 2484, Fejér
37.500.000 Ft
MH587, Gárdony kedvelt részén családi ház eladó!
Eladva

MH587, Gárdony kedvelt részén családi ház eladó!

Gárdony, Gárdony, 2484, Fejér
79.000.000 Ft
Ezeket az ingatlanokat látta már?
MH3, Székesfehérvári felújított lakás eladó
Eladva

MH3, Székesfehérvári felújított lakás eladó

Székesfehérvár, belváros közelében, 8000, Fejér
13.500.000 Ft
MH4, Teljesen felújított lakás eladó, Székesfehérvár
Eladva

MH4, Teljesen felújított lakás eladó, Székesfehérvár

Székesfehérvár, Széchenyi utca, 8000, Fejér
10.800.000 Ft
MH5, Eladó téglaépítésű családi ház Székesfehérváron
Eladva

MH5, Eladó téglaépítésű családi ház Székesfehérváron

Székesfehérvár, Domb utca, 8000, Fejér
29.000.000 Ft
MH11,  üdülőház eladó, Zalakaros
Eladva

MH11, üdülőház eladó, Zalakaros

Zalakaros, 8749, Zala
3.900.000 Ft

Ingatlan kereső

  • Gyorskereső
  • (Ft). 0
    (Ft). 500,000,000
  •   Részletes keresés